Пластина для устан. 4-х отражателей к ИПДЛ-Д-I/4р
Пластина для устан. 4-х отражателей к ИПДЛ-Д-I/4р
Производитель: Полисервис НПФ
- Код:
- 00020398
- Артикул
- 2370
- Базовая единица
- шт
505 руб.
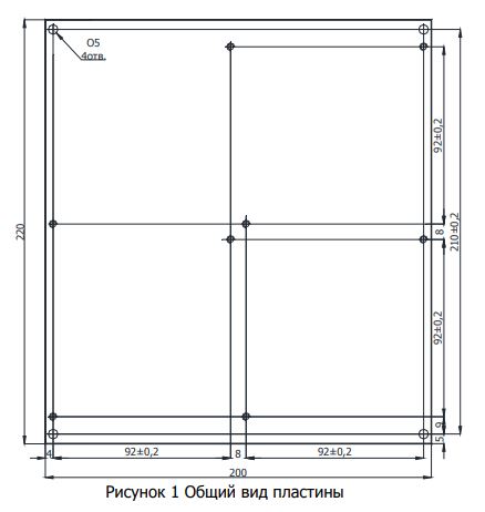
Пластина для установки четырех отражателей для ИПДЛ-Д-I/4р предназначена для использования в комплекте с Извещателем пожарным дымовым линейным ИПДЛ-Д-I/4р для установки на ней от одного до четырех отражателей, в случае, когда их невозможно установить непосредственно на стену или другую поверхность.
Общий вид пластины с габаритными и посадочными размерами приведен на рисунке.
Каждый отражатель прикручиваются к пластине двумя винтами М3 . Пластина с установленными отражателями закрепляется на месте установки четырьмя саморезами. При этом необходимо обеспечить жесткость крепления.

