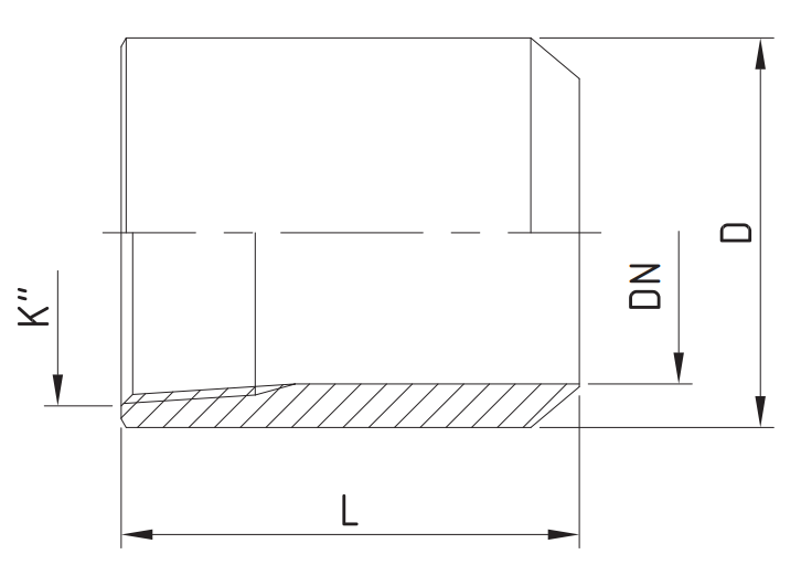
Муфта под РВД DN50
Муфта предназначена для соединения РВД с трубопроводом ГПТ (212056)
Производитель: Спецавтоматика АО
- Код:
- 00031049
- Базовая единица
- шт
- Доступность:
- заказная
Данная модель является проектным оборудованием, цены по запросу.
Муфта предназначена для соединения РВД с трубопроводом ГПТ
Технические характеристики
| Код оборудования | Наименование | Размеры | Масса, кг | |||
| K’’ | D, мм | DN, мм | L,мм | |||
| 212056 | Муфта под РВД DN50 | 2’’ | 70 | 50 | 80 | 0,9 |

