ТГБ-8Г Ex-PoE+
Термокожух взрывозащищенный для видеокамеры из нержавеющей кислотостойкой аустенитной стали (12Х18Н10Т). Класс взрывозащиты РВ Ех db I Mb X / 1Ех db IIC Т6 Gb Х / Ех tb IIIC Т80°C Db Х. Степень защиты IP66/IP68.
Производитель: Тахион
- Код:
- 00031867
- Бренд:
- Тахион
- Артикул
- 13003
- Базовая единица
- шт
250 530 руб.
Термокожух взрывозащищенный ТГБ-8Г Ex PoE+ предназначен для установки сетевых (IP) и аналоговых видеокамер с объективами, ИК прожекторов и другого электронного оборудования и защиты его от воздействия окружающей среды (влаги, пыли и отрицательных температур).
- Материал изделия – нержавеющая кислотостойкая аустенитная сталь.
- Выполнен в виде взрывонепроницаемой оболочки по ГОСТ 31610.0 (IEC 60079-0), ГОСТ IEC 60079-1, ГОСТ IEC 60079-31
- С маркировкой взрывозащиты РВ Ех db I Mb X / 1Ех db IIC Т6 Gb Х / Ех tb IIIC Т80°C Db Х
- Со степенью защиты IP66/IP68, обеспечиваемой оболочкой
- Модуль для установки видеокамеры изолирован от корпуса термокожуха.
- Смотровое окно выполнено из ударопрочного закалённого стекла.
- Изделие выпускается по техническим условиям ТУ 26.30.50-083-31006686-2021.
Термокожух обеспечивает:
- отключение питания термокожуха при повышении температуры внутри его выше +70°С (из-за климатических факторов - в летний период) и восстановление питания после понижения температуры ниже +60°С;
- автоматическое включение/отключение встроенного обогревателя в заданном диапазоне температур;
- стабилизацию температуры видеокамеры (встроенный вентилятор);
- преобразование ряда входных напряжений в стандартный ряд напряжений питания видеокамер;
- безаварийное включение электропитания видеокамеры при отрицательной температуре внутри термокожуха при перерывах в электропитании, исключая выход видеокамеры из строя при запуске.
Термокожух соответствует:
- техническим требованиям – ГОСТ Р 51558;
- требованиям безопасности – ГОСТ Р МЭК 60065;
- требованиям по ЭМС – ГОСТ Р 50009, ГОСТ 30804.3.2, ГОСТ 30804.3.3;
- степени защиты от поражения электрическим током по ГОСТ 12.2.007.0 – III классу;
- климатическому исполнению – УХЛ1, 5 по ГОСТ 15150; степени защиты – IP66/IP68 по ГОСТ 14254.
Технические характеристики
| Стандарты питания термокожуха / мощность источника питания, Вт |
IEEE 802.3at (PoE+) / 30 Passive PoE 48…56 В / 30 (см. таблицу ниже) |
| Стандарты IP-видеокамеры |
Ethernet 10/100BASE-TX IEEE 802.3af |
| Максимальная длина кабеля UTP кат. 5е, м | 100 (см. таблицу ниже) |
| Напряжение / ток внутреннего источника питания для доп. устройства, В DC / А | – |
| Мощность потребления устанавливаемой IP-видеокамеры, Вт | 6,5 |
|
Температура вкл./откл. обогрева*, °С |
+20 ± 3 / +25 ± 3 |
| Мощность обогрева, Вт до хол. запуска/после хол. запуска | 22 / 15 |
| Максимальная потребляемая мощность (включая IP-видеокамеру), Вт, не более | 25 |
| Диапазон температуры окружающей среды при эксплуатации, °С | -60 … +50 |
| Температура вкл./откл. холодного запуска, °С | -10 ± 3 / -15 ± 3 |
| Влажность воздуха при +25 °С, % | до 100 |
| Устойчивость к несанкционированным действиям (НСД) | II (средняя) по ГОСТ Р 51558 |
| Устойчивость к низким температурам | III (высокая) по ГОСТ Р 51558 |
| Устойчивость к внешним воздействиям | III (высокая) по ГОСТ Р 51558 |
| Степень защиты оболочки | IP66/IP68 по ГОСТ 14254 |
| Устойчивость к импульсным помехам по цепям Ethernet | класс 2 по ГОСТ Р 51317.4.5 |
| Материал корпуса | нержавеющая кислотостойкая аустенитная сталь |
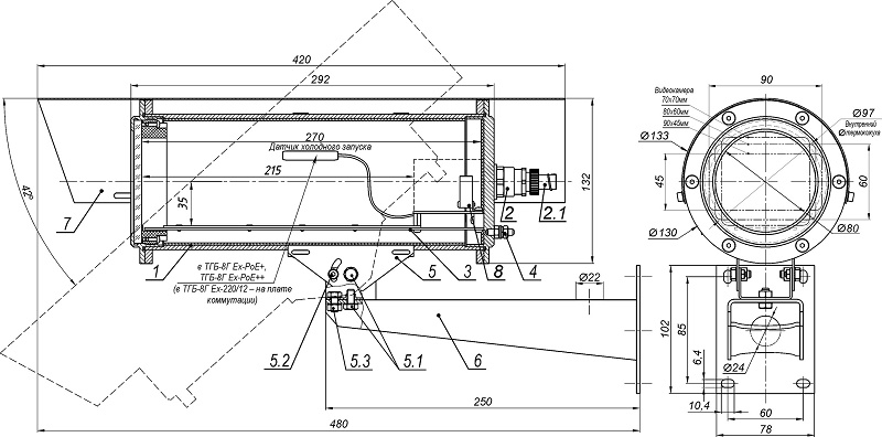
| Габаритные размеры | см. рисунок |
| Масса с упаковкой, кг, не более | 7,1 |
| Режим работы | круглосуточный |
|
Напряжение Длина линии |
48 В | 50 В | 56 В |
| 50 м | -55 °С | -60 °С | -60 °С |
| 100 м | -50 °С | -55 °С | -60 °С |

