ТГБ-8Г Ex-220/12
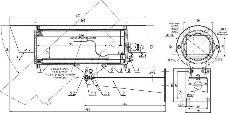
Термокожух взрывозащищенный для видеокамеры из нержавеющей кислотостойкой аустенитной стали (12Х18Н10Т).
Производитель: Тахион
- Код:
- 00031868
- Бренд:
- Тахион
- Артикул
- 13002
- Базовая единица
- шт
238 245 руб.
Термокожух ТГБ-8Г Ex-220/12 предназначен для установки сетевых (IP) и аналоговых видеокамер с объективами, ИК прожекторов и другого электронного оборудования и защиты его от воздействия окружающей среды (влаги, пыли и отрицательных температур).
- Материал изделия – нержавеющая кислотостойкая аустенитная сталь.
- Выполнен в виде взрывонепроницаемой оболочки по ГОСТ 31610.0 (IEC 60079-0), ГОСТ IEC 60079-1, ГОСТ IEC 60079-31
- С маркировкой взрывозащиты РВ Ех db I Mb X / 1Ех db IIC Т6 Gb Х / Ех tb IIIC Т80°C Db Х
- Со степенью защиты IP66/IP68, обеспечиваемой оболочкой
- Модуль для установки видеокамеры изолирован от корпуса термокожуха.
- Смотровое окно выполнено из ударопрочного закалённого стекла.
- Изделие выпускается по техническим условиям ТУ 26.30.50-083-31006686-2021.
Термокожух обеспечивает:
- отключение питания термокожуха при повышении температуры внутри его выше +70°С (из-за климатических факторов - в летний период) и восстановление питания после понижения температуры ниже +60°С;
- автоматическое включение/отключение встроенного обогревателя в заданном диапазоне температур;
- две ступени мощности обогрева, что позволяет оптимизировать электропотребление и использовать термокожух в разных климатических зонах в соответствии с ГОСТ 15150;
- стабилизацию температуры видеокамеры (встроенный вентилятор);
- преобразование ряда входных напряжений в стандартный ряд напряжений питания видеокамер;
- безаварийное включение электропитания видеокамеры при отрицательной температуре внутри термокожуха при перерывах в электропитании, исключая выход видеокамеры из строя при запуске.
Термокожух соответствует:
- техническим требованиям – ГОСТ Р 51558;
- требованиям безопасности – ГОСТ Р МЭК 60065;
- требованиям по ЭМС – ГОСТ Р 50009, ГОСТ 30804.3.2, ГОСТ 30804.3.3;
- степени защиты от поражения электрическим током по ГОСТ 12.2.007.0 – I классу;
- климатическому исполнению – УХЛ1, 5 по ГОСТ 15150; степени защиты – IP66/IP68 по ГОСТ 14254.
Технические характеристики
| Напряжение питания, В | 230 AC |
| Напряжение / ток внутреннего источника питания, В DC / А | 12 / 1,4 |
| Температура вкл./откл. обогрева, °С | +20 / +25 |
| Мощность обогрева, Вт |
25 17 |
|
Максимальная потребляемая мощность / ток (включая видеокамеру), Вт / А 25 17 |
46 / 0,2 38 / 0,16 |
|
Диапазон температуры окружающей среды при эксплуатации, °С |
-60 … +50 |
|
Температура окружающей среды, при которой гарантирован холодный запуск видеокамеры, °С 25 17 |
-60 -40 |
| Температура вкл./откл. холодного запуска, °С | -10 / -15 |
| Влажность воздуха при +25 °С, % | до 100 |
| Устойчивость к несанкционированным действиям (НСД) | II (средняя) по ГОСТ Р 51558 |
| Устойчивость к низким температурам | III (высокая) по ГОСТ Р 51558 |
| Устойчивость к внешним воздействиям | III (высокая) по ГОСТ Р 51558 |
| Степень защиты оболочки | IP66/IP68 по ГОСТ 14254 |
| Материал корпуса | нержавеющая кислотостойкая аустенитная сталь |
| Габаритные размеры | см. рисунок |
| Масса с упаковкой, кг, не более | 7,1 |
| Режим работы | круглосуточный |

