ТГБ-4Г Ex IIC
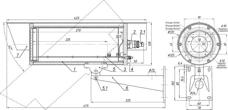
Термокожух взрывозащищенный без обогрева для видеокамеры. Класс взрывозащиты 1Ex db IIC T6 Gb X / Ex tb IIIC T80°C Db X. Степень защиты IP66/IP68. Рабочий объем 70х70х280 мм. Габариты, мм: Lнар. 420, øнар. 131. Напряжение питания термокожуха 250VAC max или 110VDC max. Диапазон рабочих температур -60° ÷ +50°C.
Производитель: Тахион
- Код:
- 00044073
- Бренд:
- Тахион
- Артикул
- 12013
- Базовая единица
- шт
Термокожух взрывозащищенный без обогрева ТГБ-4Г Ех IIC предназначен для установки сетевых (IP) и аналоговых видеокамер с объективами, ИК прожекторов и другого электронного оборудования и защиты его от воздействия окружающей среды (влаги, пыли и отрицательных температур). Наружные пространства и внутренние пространства помещений, классифицированные как взрывоопасные зоны классов 1, 2, 21 и 22 (при классификации по зональному принципу), где возможно образование взрывоопасной смеси группы I и взрывоопасных газовых смесей подгрупп IIА, IIВ, IIC, пылевых сред подгрупп IIIА, IIIВ, IIIC, температурных классов Т1-Т6 или взрывоопасные зоны класса В-I, В-Iа, В-Iб, В-Iг, согласно главе 7.3 «Правил устройства электроустановок» (ПУЭ).
- Выполнен в виде взрывонепроницаемой оболочки по ГОСТ 31610.0 (IEC 60079‑0), ГОСТ IEC 60079-1, ГОСТ IEC 60079-31
- С маркировкой взрывозащиты 1Ex db IIC T6 Gb X / Ex tb IIIC T80°C Db X
- Со степенью защиты обеспечиваемой оболочкой – IP66/IP68
- Модуль видеокамеры изолирован от корпуса термокожуха.
- Смотровое окно выполнено из ударопрочного закалённого стекла.
- Термокожух выпускается по техническим условиям ТУ 26.30.50-081-31006686-2019.
- Климатическое исполнение термокожуха соответствует УХЛ1, 5 по ГОСТ 15150.
Термокожух обеспечивает:
- отключение питания термокожуха при повышении температуры внутри его выше +70°С (из-за климатических факторов - в летний период) и восстановление питания после понижения температуры ниже +60°С.
Термокожух соответствует:
- техническим требованиям – ГОСТ Р 51558;
- требованиям по безопасности – ГОСТ Р МЭК 60065;
- требованиям по ЭМС – ГОСТ Р 50009, ГОСТ 30804.3.2, ГОСТ 30804.3.3;
- степени защиты от поражения электрическим током – I классу по ГОСТ 12.2.007.0.
Технические характеристики:
| Максимально допустимое напряжение питания устанавливаемого в термокожух электронного оборудования (видеокамеры) | 230 В |
| Максимально допустимая мощность устанавливаемого в термокожух электронного оборудования (видеокамеры) | 60 Вт |
|
Климатические условия работы: – диапазон рабочих температур – влажность воздуха |
-60°С ÷ +50°С до 100% при +25°С |
| Габаритные размеры | см. рис. |
| Вес с упаковкой | не более 3,9 кг |
| Режим работы | круглосуточный |

