КР-1.4000
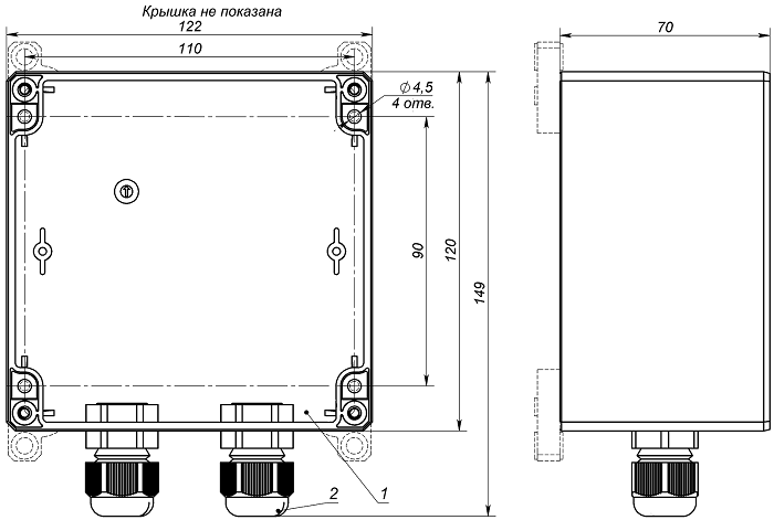
Коробка распределительная из ABS пластика для коммутации цепей питания и линий связи. Четыре гермоввода под кабель 6-10мм. -40°÷ +70°С. IP66/67. 122х120х86мм
Производитель: Тахион
- Код:
- 00044199
- Бренд:
- Тахион
- Артикул
- 40121
- Базовая единица
- шт
4 095 руб.
Коробка распределительная КР-1.2000 предназначена для коммутации цепей питания и линий связи, и защиты их от воздействия окружающей среды. Идеально подходит для внешнего (уличного) подключения и обслуживания сетевых и аналоговых видеокамер без вскрытия термокожуха.
- Выпускается по техническим условиям ТУ 26.30.50-077-31006686-2017.
- Климатическое исполнение коробок соответствует УХЛ1.5 ГОСТ 15150-69.
- Степень защиты IP 66 / IP 67.
- Четыре гермоввода под кабель 6-10мм.
Технические характеристики
| Материал корпус | пластик ABS |
| Диапазон рабочих температур | -40°C … +70°C |
| Габаритные размеры (с гермовводами) | 149х120х70 мм |
| Габаритные размеры | 122х120х70 мм |
| Вес с упаковкой, не более | 0,4 кг |

