ВУК-28-PoE+ У11 У81
Всепогодный узел коммутации для обеспечения работы от 1-й до 8-и IP-видеокамер с питанием по технологии РоЕ/PoE+. Оборудован 8-портовым неуправляемым коммутатором с функцией Watchdog, источником питания 48-55В/240Вт, устройством защиты электропитания УЗП-220 и блоком защиты БЗЛ-ЕП4х2. Класс защиты IP66.
Производитель: Тахион
- Код:
- 00044622
- Артикул
- 58020
- Базовая единица
- шт
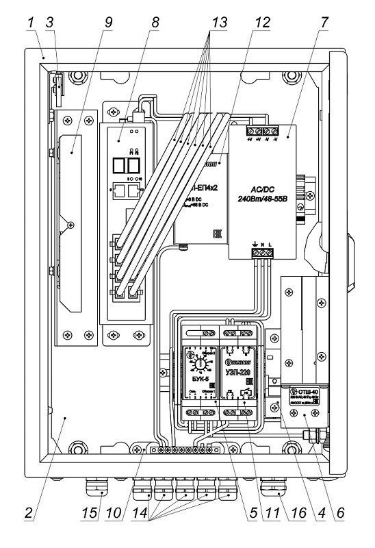
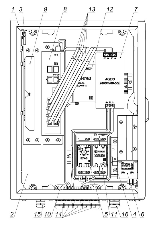
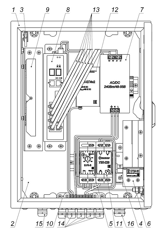
Всепогодный узел коммутации ВУК-28-РоЕ+ У11 У81 предназначен для обеспечения работы от 1-го до 8-и оконечных IP-устройств с питанием по технологии РоЕ (IEEE 802.3af/at/bt), организации группового канала передачи данных по волоконно-оптической сети, а также поддержания заданного температурного режима при эксплуатации задействованного оборудования.
Изделие оборудовано
- блоком управления климатом (БУК-5), предназначенным для управление обогревом;
- обогревателем термошкафов ОТШ-40, оборудованным встроенным биметаллическим выключателем, ограничивающим температуру поверхности радиатора до +90°С;
- устройством защиты электропитания УЗП-220 предназначенным для защиты оборудования, подключённого к линиям электропитания переменного тока 220 В, от наведенных напряжений, вызванных электромагнитными импульсами высоких энергий (грозовыми, электростатическими разрядами и т.д.);
- блоком защиты БЗЛ-ЕП4х2, предназначенным для защиты от импульсных перенапряжений 8-и портов локальной сети Ethernet 10/100/1000 Base-TX, в том числе, использующих технологию PoE (IEEE 802.3af/at/bt);
- AC/DC преобразователем 230/48-55В, 240Вт;
- тамперным контактом для сигнализации о несанкционированном доступе.
Изделие выпускается по техническим условиям ТУ 26.30.50-077-31006686-2017.
По способу защиты человека от поражения электрическим током изделие соответствует классу I по ГОСТ 12.2.007.0-75.
Климатическое исполнение изделия соответствует УХЛ1, 5 ГОСТ 15150-69. Степень защиты IP 66.
Технические характеристики
| Питание изделия: | |
| – напряжение питания | 230 В AC, 50 Гц |
| – максимальный ток нагрузки | 6 А |
| Обогрев: | |
| – напряжение питания | 230 В AC, 50 Гц |
| – потребляемая мощность | 40 Вт |
| Диапазон рабочих температур | – 60 °С ÷ +50 °С |
| Интерфейсы: | |
| – порт 10/100/1000 Base-T RJ-45 PoE, watchdog | 8 шт. |
| – порт combo 1G/SFP | 2 шт. |
| PoE: | |
| – по стандарту PoE IEEE 802.3af/at | 6 портов |
| – по стандарту PoE IEEE 802.3af/at/bt | 2 порта |
| – общий бюджет PoE* | 230 Вт |
| Максимальная потребляемая мощность | 290 Вт |
| Материалы и поверхности изделия: | |
| – корпус (дверь) | листовая сталь 1,25 (1,5) мм, грунтовка, порошковое покрытие |
| – панель монтажная | листовая сталь 2 мм, оцинкованная |
| Габаритные размеры (без гермовводов) ШхВхГ | 300х400х210 мм |
| Вес c упаковкой | 15 кг |
Состав изделия:
- Шкаф 300х300х210мм 1шт.
- Монтажная панель 1шт.
- Тамперный контакт (S2) 1шт.
- Выключатель автоматический ВА47-29 2P 6A/4,5кА хар-ка С (S1) 1шт.
- Блок управления климатом (БУК-5) 1шт.
- Обогреватель (ОТШ-40) 1шт.
- Устройство защиты питания 230В (УЗП-220) 1 шт.
- AC/DC преобразователь 230/55В, 150Вт 1шт.
- Неуправляемый PoE коммутатор 8 портов Eth + 2 порта combo 1G/SFP 1шт.
- Патч-корд UTP, кат.5е 8 шт.
- Оптический кросс с адаптерами SC-SC (4 шт.) 1шт.
- Шина заземления (Ш1) 1шт.
- Блок защиты портов в сети ETHERNET c питанием РоЕ (БЗЛ-ЕП4х2) 1 шт.
- Кабельный ввод PG9, Ø кабеля 8-4,5 мм 8шт.
- Кабельный ввод PG11, Ø кабеля 10-6 мм 2шт.
- Кабельный ввод PG13,5, Ø кабеля 12-7 мм 2шт.

